코월드몰딩(주)
       NO.

                    부품명

                                       단면도

    pcs/box

 

Clutch
 

 
 


Clutch Holder
 

 
 


End Cap65
 

 
 


Transfer
 Screw Set
 

 
 


Cord
 Controller
 

 


Cord escape

 prevention
 cap 

 

 

 
 


1.2mm Cord clip
 

 
 


Valance Clip
 

 
 

Cord Spacer
 

 

 
15mm Spline
 Pipe Cap 

 

 

 

Bottom Rail
 Cap 

 

 
 

15mm AL Pipe
          
 

 
 

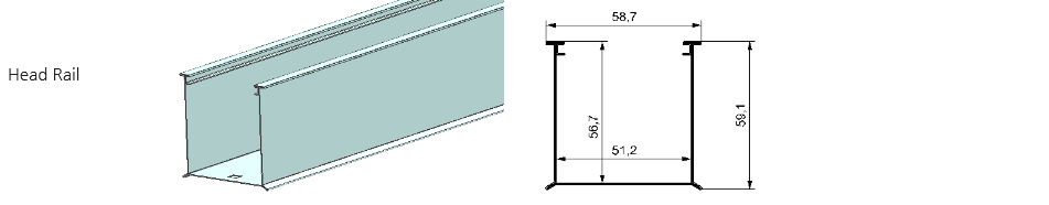
Head Rail